El pasado 1 de Mayo se celebraron los 120 años de fundación del Museo de Arte de Turku (Turun taidemuseo), un edificio ejecutado por el arquitecto finlandés Gustaf Nyström (1856-1917), por lo que es el momento ideal para hablar del segundo museo más importante de Finlandia.

Fachada principal.
Fotografía: Antti Laiho / Museum of Finnish Architecture.
Carl Gustaf Nyström era el primogénito del matrimonio conformado por el policía Gustaf Nyström (1822-1878) y Fredrika Nyström (de soltera Grönroos, nacida en 1834). Cuando contaba con trece años nacería su hermano Alexander Rogatus Nyström (1869-1926), que también se dedicaría a la arquitectura.
Gustaf Nyström se graduaría como arquitecto en la Escuela Politécnica de Helsinki (Polyteknilliseksi kouluksi) en 1876, dando sus primeros pasos en el estudio de Frans Sjöstrom (1840-1885). Dos años después de su graduación continuaría sus estudios con Heinrich von Ferstel (1828-1883) en Viena antes de realizar un viaje de estudios a Italia. En 1879 regresaría a su país natal, dedicándose a impartir clases de construcción de edificios hasta 1885 y con posterioridad, ocuparía la cátedra de arquitectura en el Colegio Politécnico (Polyteknilliseksi opistoksi). Durante todo ese tiempo compaginaría éste puesto junto al de miembro del ayuntamiento de Helsinki, llegando a ser presidente del Comité de Urbanismo de la capital. Por esas fechas ejecutaría los primeros mercados cubiertos del país, entre ellos Helsinki (1888) y Turku (1896), realizados con materiales novedosos como el hierro o el vidrio.

Fotografía: K.E. Ståhlberg / Agencia del Museo.
A partir de 1890 viajaría a diversas partes del continente europeo para tomar ideas para sus propuestas arquitectónicas. Gracias a ello ganaría un concurso de urbanismo propuesto por el ayuntamiento de Helsinki para la zona de Töölo contando con el apoyo del ingeniero Herman Norrmén (1860-1907), pero la idea inicial no sería ejecutada hasta 1902 con modificaciones del propio Nyström en colaboración con Lars Sonck (1870-1956). En 1892 Gustaf Nyström obtendría el reconocimiento como académico por la Academia Imperial de las Artes de San Petersburgo (Imperátorskaya Akademia judózhestv) y tres años más tarde se le concedería en Finlandia el título de profesor, convirtiéndose en director del Colegio Politécnico con el inicio del nuevo siglo. Junto a ello sería jefe del departamento de Arquitectura hasta 1910, formando a arquitectos de generaciones posteriores.
En 1900 comenzaría la construcción del edificio de esta entrada, aunque su historia se inició cinco años antes con una gran donación de los hermanos Ernst (1846-1924) y Magnus (1859-1924) Dahlström para la realización de una biblioteca en la ciudad de Turku. En 1897 el empresario Fredric von Rettig (1843-1914) concedió una gran cantidad de dinero para la edificación de un edificio con el mismo propósito, por lo que los hermanos Dahlström pudieron centrarse en una construcción de un lugar adecuado a las necesidades de las artes visuales.
En ese año de 1900 se organizaría un concurso cerrado entre cuatro participantes, siendo parte del jurado el pintor Victor Westerholm (1860-1919), los hermanos Dahlström y los arquitectos Sebastian Gripenberg (1850-1925) y Marcus Schjerfbeck (1860-1933). Tras un empate técnico entre las propuestas de Gustaf Nyström y el trío de arquitectos Anders, Jung & Bomansson, se estableció un nuevo concurso con nuevas ideas entre los vencedores, siendo elegida la propuesta de Nyström como punto de partida para la construcción del edificio, aunque no estuvo exenta de críticas por parte de jóvenes edificadores que lo consideraban pasado de moda. La primera piedra fue colocada en 1902 en la colina de Puolalanmäki, siendo ejecutado el edificio en dos años bajo la dirección de obras de Alexander Rogatus Nyström, el hermano del ganador del proyecto.

Plano con la elevación oeste.
Fotografía: LPR Architects / Museum of Finnish Architecture.
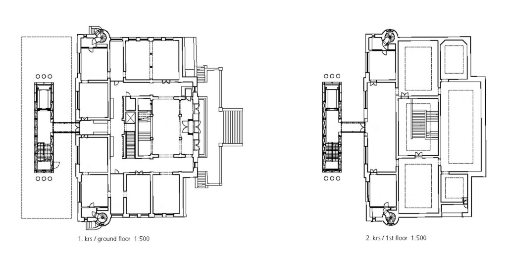
Su planta tiene forma rectangular organizada en torno a un gran hall y una escalera central, siendo divididas las estancias de forma cuadrada o rectangular en los dos pisos que componen el edificio. En sus esquinas se encuentran escaleras helicoidales de acceso al piso superior, siendo todo rematado con un acceso desde la colina por los lados que se convierten en un único paso al interior.

Plantas de los dos pisos del museo.
Fotografía: LPR Architects / Museum of Finnish Architecture.
La fachada principal de granito rojo, situada en Aurakatu, se organiza en su parte inferior mediante un basamento conformado por dos escaleras en ambas alas laterales que convergen en una central que da paso a la entrada del museo. Las tres puertas de acceso, con aldabas con forma de felinos, se encuentran bajo arcos de medio punto y se enmarcan en una estructura similar a un arco de triunfo romano, sobresaliendo sus cuatro capiteles sobre pilastras representando los cuatro campos del arte: arquitectura, pintura, escultura e ingeniería. El cambio al piso superior se tiene lugar a través de una decoración de canecillos, mientras que la fachada queda encuadrada por dos torres decorativas muy espigadas que ocultan las escaleras de caracol. Todo el conjunto se remata mediante unos techos de cristal, que a la vez resultan plegables.

Detalle de los capiteles en la entrada.
Fotografía: Eteil / Wikipedia Commons.
En 1999 se decidió renovar el edificio, concluyendo seis años más tarde. Mientras tenían lugar las obras la exposición se trasladó al observatorio Vartiovuori (Vartiovuoren tähtitorni), en el centro de la ciudad. Gracias a la mejora el museo obtuvo un almacenamiento subterráneo, un ascensor y una tienda. Junto a la colina de Puolalanmäki forma una entidad considerada como entorno cultural construido de importancia nacional, definido por la Agencia de Museos (Museovirasto) en 2009.

Sección con la ampliación.
Fotografía: LPR Architects / Museum of Finnish Architecture.
En su inauguración se expusieron 479 obras contemporáneas en una muestra comisariada por Albert Edelfelt (1854-1905) y Eero Järnefelt (1863-1958), abierta durante cinco semanas y pudiendo ser contemplada por más de 8.300 personas. Actualmente en su interior se muestran lienzos de los grandes pintores de la Edad de Oro finlandesa, entre ellos “La defensa del Sampo” (1896) o “La venganza de Joukahainen” (1897), de Akseli Gallen-Kallela; “Autorretrato” (1899 y 1903) de Elin Danielson-Gambogi; “Autorretrato” (1915) de Helene Schjerfbeck.

Vista de una de las salas de exposición.
Fotografía: Antti Laiho / Museum of Finnish Architecture.
Con la llegada del nuevo siglo Gustaf Nyström fue uno de los arquitectos pioneros en emplear hormigón armado para sus obras, además de desarrollar nuevos edificios revestidos de ladrillo al exterior, pero cuyo interior muestra la influencia del llamado “estilo romántico nacional” vinculado al Art Nouveau. Durante sus últimos años sería el encargado de diseñar las sucursales del Banco de Finlandia (Suomen Pankki) en Vyborg, Kotka, Pori y Turku.
Aparte de su labor como profesor y como diseñador de numerosos edificios por todo el país, Gustaf Nyström fue el iniciador de trabajos para numerosos dibujos de medición de monumentos históricos en Finlandia, iniciándose en Turku con su Catedral y su castillo. Tras su fallecimiento fue enterrado en el cementerio de Hietaniemi (Hietaniemen hautasmaa) de la capital en la tumba familiar.
- Fuentes:
- Museo de Arte de Turku. En Museum- Turku Art Museum (Museo de Arte de Turku, en finés, sueco e inglés): https://turuntaidemuseo.fi/en/museum
- Museo de Arte de Turku. En Finnish Architecture Navigator (Navegador de la Arquitectura de Finlandia, en inglés): https://finnisharchitecture.fi/turku-art-museum/
- Gustaf Nyström. En Museum of Finnish Architecture (Museo de Arquitectura de Finlandia, en finés, sueco e inglés): https://www.mfa.fi/kokoelmat/arkkitehdit/gustaf-nystrom/
- Eriksson, P. Nyström, Gustaf. En Uppslagsverket Finland (Enciclopedia Finlandia, en sueco): https://uppslagsverket.fi/sv/sok/view-170045-NystroemGustaf
- Helander, V. Nyström, Gustaf (1856-1917). En Biografiskt Lexikon för Finland (Diccionario biográfico para Finlandia, en sueco): https://www.blf.fi/artikel.php?id=3323
- Fotografía de Gustaf Nyström por K.E. Ståhlberg. En Museovirasto (Agencia del museo, en finés, sueco e inglés): https://www.finna.fi/Record/museovirasto.317D919E4670FE4D5A11BBB0228C3A78?sid=4711940402
